
My Work
Leadership, fabrication, construction, agriculture, and business ownership. Cultivated through real world experiences and a relentless drive to improve.

Metal Fabrication
Welding, CNC operation, CAD rendering, production management, and custom metal work forged through years of hands-on leadership.





Fine Carpentry & Furnature
These are all projects I made while owning and operating Pike County Iron & Woodwork.





Construction
From demo to structural repairs to detailed finish work, my approach to construction is grounded in hands on experience, disciplined execution, and respect for quality craftsmanship.





Blacksmithing
While operating Double B Blacksmithing co & Pike CO Iron & Woodwork I honed my craft in blacksmithing and leather work. Deepening my understanding of metallurgy and continually refining the traits of a true artisan.



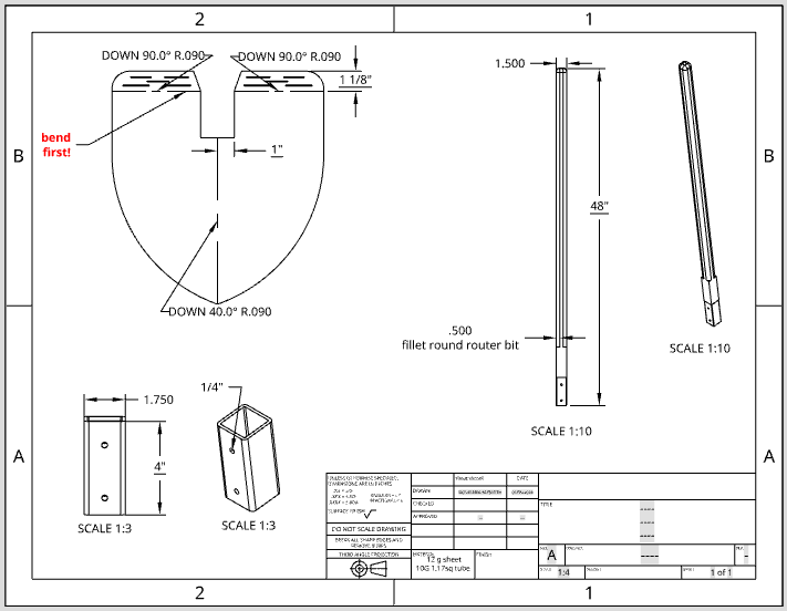
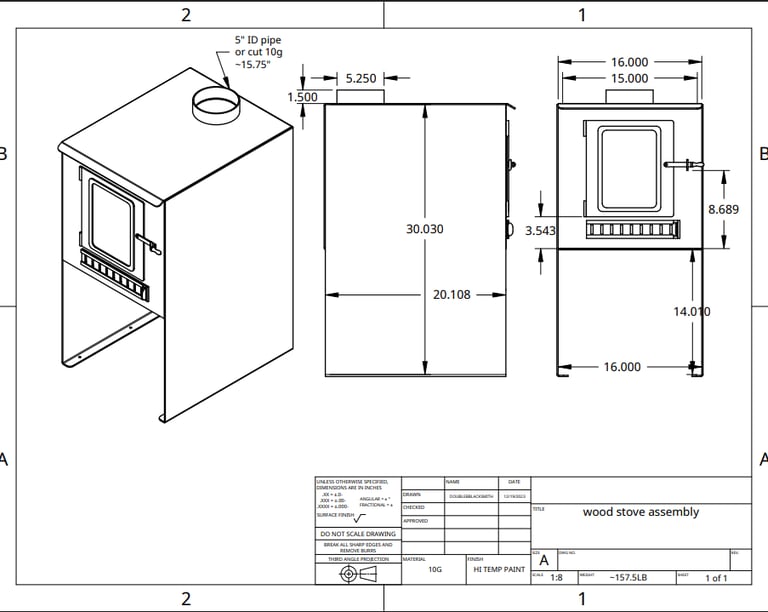
CAD Design & Blueprint rendering
Learning CAD design and blueprint rendering to transform ideas into accurate, build-ready plans was a major improvement that transformed many of my more complicated project ideas into a reality. Backed by my real world construction and fabrication experience, each draft was created with practical application, precision, and execution in mind.





Agriculture
Hands-on experience in livestock operations, feedlot management, and agricultural equipment operation. From animal care to machinery operation, my background in agriculture built a strong foundation in responsibility, problem-solving, and working in demanding environments where consistency and attention to detail matter.
Areas Of Expertise
design
Design is about making something that not only looks good, but works the way it should. I focus on practical, functional design keeping things clean, structured, simplistic and easy to use. Whether it’s a website, construction layout, or a blueprint, the goal is always the same: build something that holds up and does its job well.
planning
Strategy is about understanding the bigger picture and making decisions with purpose. I focus on identifying the most effective path forward, setting clear direction, and aligning actions with long-term goals. With a practical mindset, I approach strategy as something that must translate into real results—not just ideas, but decisions that lead to measurable progress.
operations
Strong operations create the foundation for any successful business. I focus on developing structured processes and efficient systems that support consistency, clarity, and performance. By organizing workflows and refining how work gets done, I help ensure that operations remain reliable and scalable over time.
leadership
Leadership, to me isn't about having a big mouth, its about setting the standard and following through. Its about earning respect and taking responsibility, making clear decisions, and ensuring that the work gets done the right way. I focus on creating structure, maintaining accountability, without micromanaging and leading by example whether working independently or as part of a team. Strong leadership isn’t about control, it’s about clarity, trust, and consistent execution.
Testimonials
Real feedback from people I’ve had the privilege to work for
Colten at Rocky Mountain Repair does outstanding work. He’s professional, dependable, and takes real pride in doing things the right way. The quality of his craftsmanship and attention to detail really stand out. I wouldn’t hesitate to hire him again or recommend him to anyone needing reliable, honest work.
Richard S
02/22/2025
Colten is a very honest, hard-working individual that completed a lot of home remodeling for our family. His work included dry walling, shower installation, new flooring, sliding glass door and bay window installation, and siding just to name a few. He does amazing work at a fair price!

Brandi N
01/28/2025
★★★★★
★★★★★
Verified review from BBB on my work owning and operating Rocky Mountain Repair, LLC in Colorado.
